Barrio Gran Boedo
ID: FHO7690078
- USD U$D 315.000
Barrio Gran Boedo
ID: FHO7690078
- USD U$D 315.000
Visión general
- Casa
- 3
- 4
- 189 M2
- 500 M2
- 2
- Excelente
Descripción
FRANCHI INMOBILIARIA VENDE | Casa en Barrio Gran Boedo
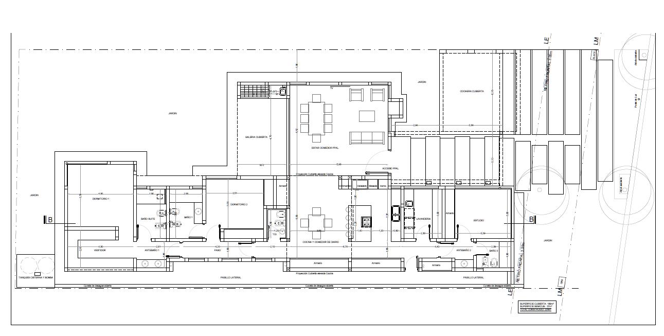
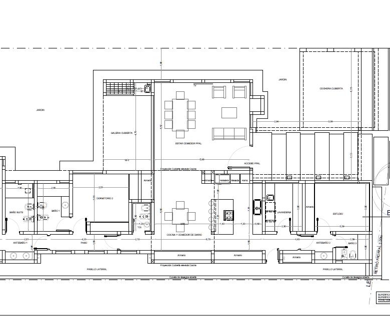
Casa de categoría en el exclusivo Barrio Privado Gran Boedo, una de las zonas con mayor crecimiento de Luján de Cuyo. Desarrollada sobre un terreno 500 m², presenta un diseño moderno y una distribución funcional pensada para disfrutar cada espacio.
La propiedad se encuentra actualmente en construcción y se estima su finalización en aproximadamente 6 meses…..
El barrio ofrece seguridad, excelente infraestructura y una ubicación estratégica sobre calle Boedo, con acceso a Vía Boedo y cercanía a importantes centros comerciales y deportivos.
La casa cuenta con:
– 3 dormitorios
– 4 baños
– Living-comedor
– Cocina
– Lavanderia
– Galeria cubierta
– Cochera cubierta para 2 vehiculos
Las imagenes publicadas son ilustrativas.














